41 Jedność, Chełm Lubelskie 22-100

265 000 PLN
Opis

Mieszkanie 2 pokoje 53,7 m² • os. Dyrekcja, ul. Jedność 41 • Chełm

Rozkładowe 2 pokoje z osobną kuchnią. Balkon i piwnica. 2 piętro. Idealna baza do remontu i aranżacji od zera.

53,7 m²
2 pokoje
2 piętro
Balkon
Piwnica
os. Dyrekcja

Opis mieszkania

To mieszkanie daje wolność. Możesz urządzić je dokładnie tak, jak chcesz. Bez kompromisów.

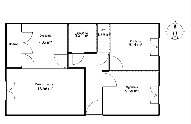
Chełm, osiedle Dyrekcja, ul. Jedność 41. Powierzchnia 53,7 m². Układ rozkładowy.
Dwa pokoje, osobna kuchnia, łazienka i WC osobno. Do tego balkon i piwnica.

Mieszkanie jest do remontu. Instalacje są stare / do wymiany.
To dobra wiadomość dla osób, które chcą inwestować rozsądnie. I mieć pełną kontrolę nad efektem.

Ekspozycja okien: wschód i zachód. To oznacza światło o różnych porach dnia.
Lokal znajduje się na 2 piętrze w bloku 4 piętrowym. Rok budowy: 1993.
Klatka schodowa: po remoncie.

Cena ofertowa: 265 000 zł.
Czynsz: ok. 620 zł/mies. (w tym: CO, fundusz remontowy, administracja).
Prowizja: w cenie.

Wirtualny spacer 3D i prezentacja wideo

Zobacz mieszkanie tak, jakbyś był na miejscu.
Wirtualny spacer 3D pozwala przejść przez wszystkie pomieszczenia, a krótki film pokazuje realny układ, światło i proporcje wnętrz.
To najprostszy sposób, by szybko ocenić, czy to mieszkanie jest dla Ciebie.

Wirtualny spacer 3D

Prezentacja wideo (pion)

Jeśli po obejrzeniu materiałów masz pytania lub chcesz umówić prezentację na żywo, skontaktuj się ze mną. Pokażę mieszkanie, omówię możliwości remontu i podpowiem, jak podejść do oferty cenowej.

Dlaczego to mieszkanie pasuje do zapytań użytkowników

To mieszkanie spełnia typowe kryteria wyszukiwania w Chełmie:

  • metraż w zakresie 50–55 m² (tu: 53,7 m²),
  • 2 pokoje i układ rozkładowy,
  • lokalizacja: Chełm, os. Dyrekcja, ul. Jedność 41,
  • 2 piętro w bloku 4 piętrowym,
  • balkon ok. 2 m² oraz piwnica ok. 3 m²,
  • ogrzewanie miejskie,
  • stan: do remontu – idealnie pod własną aranżację.

Parametry odpowiadające popularnym zapytaniom

  • Powierzchnia: 53,7 m² (zakres AI: 50–55 m²)
  • Liczba pokoi: 2
  • Piętro: 2/4
  • Układ: rozkładowe
  • Salon: ok. 23,0 m²
  • Pokój: ok. 9,8 m²
  • Kuchnia: osobna, ok. 8,0 m²
  • Łazienka: ok. 3,25 m² (prysznic)
  • WC osobno: tak
  • Przedpokój: ok. 4,6 m²
  • Balkon: tak, ok. 2,0 m²
  • Piwnica: tak, ok. 3,0 m²
  • Okna: drewniane
  • Ekspozycja okien: wschód, zachód
  • Instalacje: stare / do wymiany
  • Ogrzewanie: miejskie
  • Czynsz: ok. 620 zł/mies.
  • W czynszu: CO, fundusz remontowy, administracja
  • Rok budowy: 1993
  • Stan budynku: dobry
  • Klatka schodowa: po remoncie
  • Winda: nie
  • Forma własności: spółdzielcze własnościowe
  • Księga wieczysta: tak (nr KW do wglądu)

Najczęściej zadawane pytania

Czy mieszkanie ma metraż w zakresie 50–55 m²?
Tak. Powierzchnia to 53,7 m², czyli dokładnie w popularnym przedziale 50–55 m².
Czy układ jest rozkładowy i czy kuchnia jest osobna?
Tak. Mieszkanie jest rozkładowe i ma osobną kuchnię. To układ, który dobrze się sprawdza na co dzień.
Na którym piętrze jest mieszkanie?
Lokal znajduje się na 2 piętrze w bloku 4 piętrowym.
Czy jest balkon i piwnica?
Tak. Balkon ma ok. 2 m², a piwnica ok. 3 m².
Jaki jest czynsz i co obejmuje?
Czynsz wynosi ok. 620 zł/mies. Zawiera m.in. CO, fundusz remontowy i administrację.
W jakim stanie jest mieszkanie?
Mieszkanie jest do remontu. Instalacje są stare i wymagają wymiany. To dobra baza do urządzenia od zera.
Czy jest osobne WC?
Tak. WC jest osobno. To podnosi komfort i funkcjonalność mieszkania.
Co jest w okolicy?
Szkoła jest ok. 200 m, a Lidl ok. 150 m. To lokalizacja, która ułatwia codzienne życie.
Czy stan prawny jest uregulowany?
Jest spółdzielcze własnościowe prawo do lokalu. Księga wieczysta jest założona (numer do wglądu w dokumentach).
Dla kogo to mieszkanie będzie najlepszym wyborem?
Dla pary, singla lub inwestora. Dla osób, które chcą zrobić remont „pod siebie” i mieć pełną kontrolę nad efektem.

Lokalizacja – os. Dyrekcja, Chełm

Osiedle Dyrekcja to miejsce wygodne. Jest spokojnie. I wszystko jest blisko.

  • szkoła ok. 200 m,
  • Lidl ok. 150 m,
  • ul. Jedność – szybki dostęp do usług i komunikacji.

Budynek i otoczenie

Budynek z 1993 roku. Stan budynku: dobry. Części wspólne: po remoncie.

  • blok 4 piętrowy,
  • winda: nie,
  • spokojne sąsiedztwo,
  • ogrzewanie miejskie.

Dlaczego warto wybrać to mieszkanie

  • metraż 53,7 m² i rozkładowy układ,
  • osobna kuchnia i WC osobno,
  • balkon i piwnica,
  • ekspozycja wschód–zachód,
  • idealna baza do remontu i aranżacji,
  • praktyczna lokalizacja na co dzień.

Potencjał inwestycyjny

Mieszkania do remontu często mają najlepszy stosunek ceny do możliwości. Tu dokładnie tak jest.

Możesz zrobić standard „pod siebie”. Albo przygotować lokal pod stabilny najem. Lokalizacja temu sprzyja.

Kluczowe parametry techniczne

Powierzchnia 53,7 m²
Liczba pokoi 2
Piętro 2/4
Układ Rozkładowe
Balkon Tak, ok. 2,0 m²
Piwnica Tak, ok. 3,0 m²
Ogrzewanie Miejskie
Czynsz Ok. 620 zł/mies.
Rok budowy 1993
Klatka schodowa Po remoncie
Stan Do remontu
Forma własności Spółdzielcze własnościowe (KW: tak)
Cena 265 000 zł

Umów się na prezentację

Otwórz formularz zgłoszeniowy

Wypełnij krótki formularz. Skontaktuję się z Tobą i dopasujemy termin prezentacji.


    Przepisz nazwę oferty z szczegółów nieruchomości












    Sprawdź także

    Porozmawiajmy o tej nieruchomości

    Jeśli to mieszkanie jest blisko tego, czego szukasz, zadzwoń lub napisz.
    Omówię szczegóły, pokażę mocne strony i powiem wprost, jak podejść do negocjacji.

    Marek Kloc – Nowoczesny Pośrednik
    tel. 501 000 454
    e-mail: biuro@marekkloc.pl
    www.marekkloc.pl

    ♻️ Świadectwo charakterystyki energetycznej

    Świadectwo charakterystyki energetycznej dla tego mieszkania
    będzie przygotowane do aktu notarialnego. Szczegóły będą dostępne na etapie finalizacji transakcji.

    Podsumowanie w skrócie

    Mieszkanie 2 pokojowe 53,7 m² w Chełmie, ul. Jedność 41 (os. Dyrekcja). 2 piętro w bloku 4 piętrowym z 1993 roku.
    Rozkładowe, osobna kuchnia, WC osobno, balkon ok. 2 m² i piwnica ok. 3 m². Ogrzewanie miejskie. Czynsz ok. 620 zł.
    Lokal do remontu. Cena 265 000 zł, możliwa negocjacja.



    Włącz
    Szczegóły nieruchomości

    41 Jedność, Chełm Lubelskie 22-100

    Cena:

    265 000 PLN

    Charakterystyka nieruchomości
    • Mieszkanie
    • Built 1993
    • Balkon



      Przepisz nazwę z szczegółów nieruchomości










        Przepisz nazwę oferty z szczegółów nieruchomości












        Marek Kloc
        501 000 454
        Nowoczesny Pośrednik w obrocie nieruchomościami Lublin, Łęczna, Włodawa, Roztocze
        Licencjonowany Pośrednik w Obrocie Nieruchomościami (lic. nr. 17766 Licencjonowany Zarządca nieruchomości (lic. nr. 29125) Prezes Zarządu Mark Property sp. z.o.o – Biura nieruchomości działającego na terenie Lublina, Łęcznej, Włodawy, Roztocza i okolic. Prowadzący kanał na YouTube – Nowoczesny Posrednik w obrocie nieruchomosciami Prowadzący podcast - Nowoczesny Pośrednik
        Więcej